エスペラールⅢ
物件情報
周辺施設
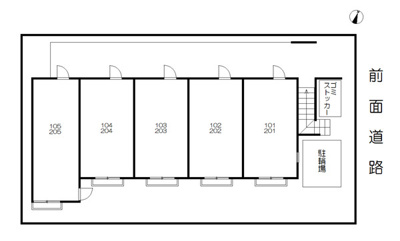
エスペラールⅢ の物件概要
【アパート】※地図上に表示される物件の位置は付近住所に所在することを表すものであり、実際の物件所在地とは異なる場合がございます。
エスペラールⅢの空室情報
津田沼の不動産や賃貸管理|株式会社レイエス > 株式会社レイエスの物件一覧 > エスペラールⅢ
エスペラールⅢ
物件情報
周辺施設
エスペラールⅢ の物件概要
【アパート】※地図上に表示される物件の位置は付近住所に所在することを表すものであり、実際の物件所在地とは異なる場合がございます。
エスペラールⅢの空室情報

エスペラールⅢに関するこだわり条件から探す